Kategorier
-
Baderomsmøbler
- Komplette møbelpakker
- Velg komponenter selv
- Marikken-serien
- Melissa-serien
- Maiken-serien
- Mathea-serien
- Mabelle-serien
- Mikala-serien
- Martine-serien
- Melanie SORT-serien
- Melanie HVIT-serien
- Merethe-serien
- Milla-serien
- Mette- serien
- Melin-serien
- Mathilde-serien
- Michelle- serien
- Melodina-serien
- Malin-serien
- Maja-serien
- Maude-serien
- Benkeplate
- Skuffebelysning LED
- Badekar
- Massasjebadekar
- Dusj
- Badekar og servanter i Solid Surface
- Håndkletørker
- Servanter
- Speil og speilskap
- Toalett
- Peisbord
- Kraner/ blandebatterier
- Baderomstilbehør
- Varmtvannsbereder
- Vannlåser/ slanger/ rørdeler
- OUTLET
- Nyheter
NYTT PRODUKT PÅ VEI INN!
Marikken-serien er en ny serie på vei inn til lageret vårt!
Kan evt. forhåndsbestilles, slik at vi sender av gårde med en gang partiet ankommer.
Ved bestilling av andre varer på samme ordre, tilbyr vi å sende alt som er lagervare, samt ettersende denne varen med en gang nytt parti ankommer uten ekstra kostnad.
Ta kontakt ved spørsmål!
________
Badnor Marikken er en elegant baderomsserie i lys eik med hvite spilefronter Serien kombinerer eikefarget tre med rene, hvite fronter i spilemønster. Skuffene har integrerte håndtak som følger linjene i designet, og soft-close mekanismen sørger for jevn og lydløs lukking.
Badnor Marikken servantskap leveres i mange ulike bredder - 75cm, 90cm, 120cm, 150cm og 180cm, slik at du kan tilpasse innredningen til rommets størrelse. Den åpne hyllen i serien gjør det mulig å få enda mer oppbevaringsplass, og matcher servantskapet i både materiale og uttrykk.
Denne serien er laget for deg som ønsker en lys og moderne baderomsinnredning med et ryddig formspråk. De naturlige fargene gjør Marikken til et tidløst valg som passer inn i den nordiske stilen.
Pakken består av:
Badnor Marikken 180cm servantskap i LYS EIK/HVIT SPILE, m/hvit servant
- Ramme i fargen lys eik
- Sluffefronter med matt hvit spilemønster
- Skuffeskinner med dempet lukking
- Heldekkende servant i hvit farge
- Utsparing i skuff for vannlås
- Klikkventil og servantbatteri selges separat
Størrelse:
- Bredde: 180 cm
- Dybde: 47,4 cm
- Høyde: 50 cm
(Anbefalt monteringshøyde: 83-84cm til topp servantplate)
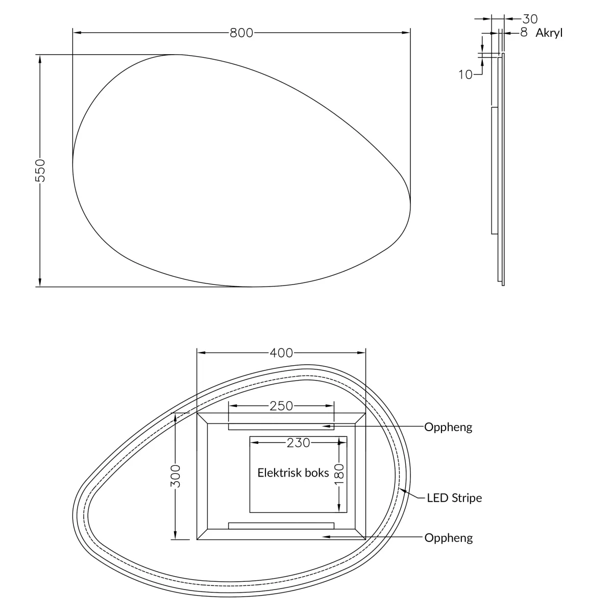
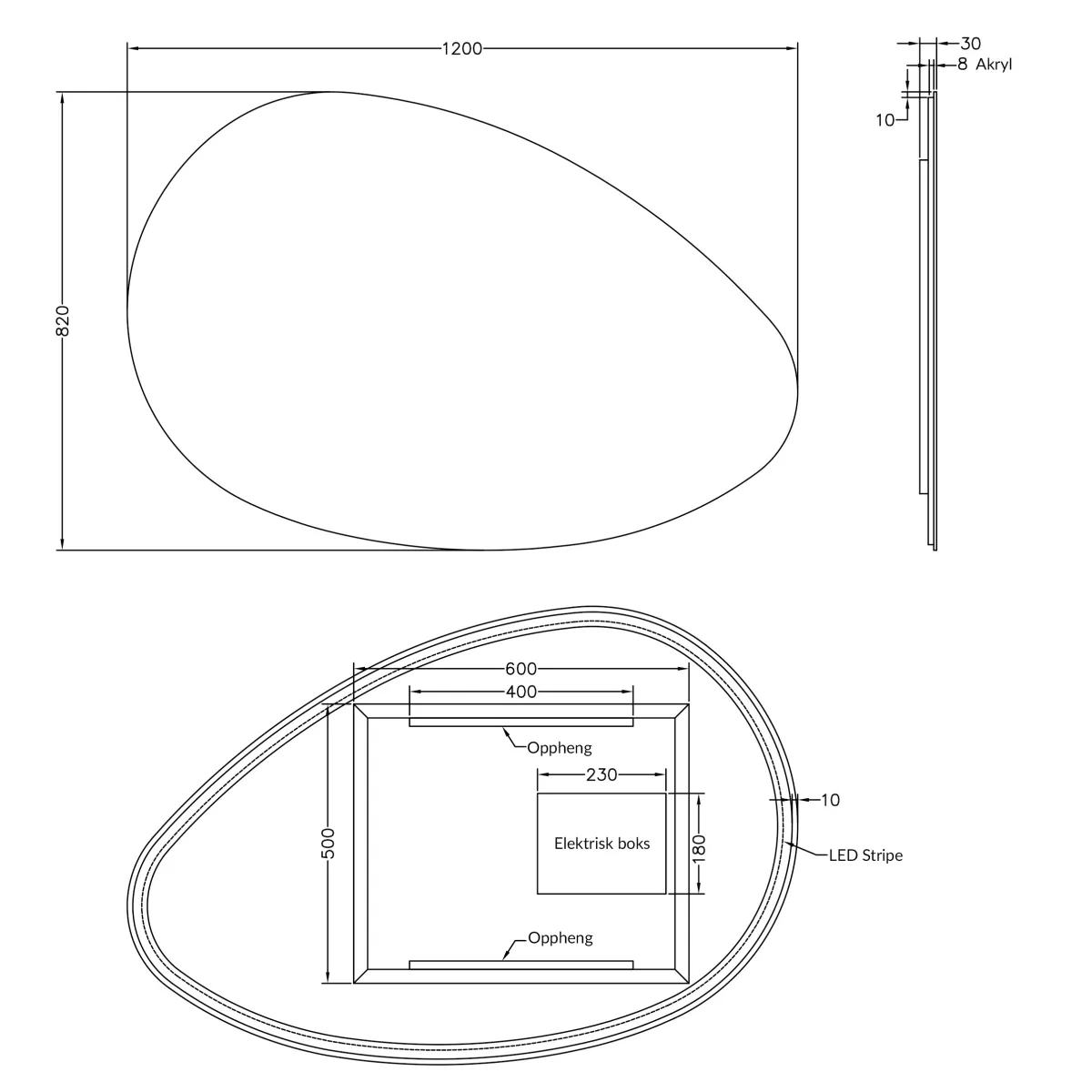
2 stk. Badnor Lucy - et vakkert eggformet speil med stemningsfull LED-belysning som gir en herlig og innbydende følelse til baderommet.
Med ren og buet form i klassisk stil, legger det moderne speilet en touch av eleganse til baderomsinnredningen.
Speil med innebygget lys er en super løsning om man har behov for ekstra belysning på baderommet. LED-stripen ligger skjult bak kanten på speilet, og speilt kan monteres både venstrevendt og høyrevendt.
Speilet leveres også med sikkerhetsfilm som reduserer faren som splinter og skader ved å holde speilet sammen om det skulle knuses, noe som reduserer risikoen for skade.
Størrelse:
- Bredde: 120cm og 80cm
- Høyde: 82cm og 55cm
- Dybde: 3cm
- Lysfarge: 3000 Kelvin
- Montering: Kan monteres både høyrevendt og venstrevendt
- Kobberfritt speil med sikkerhetsfilm (5mm)
- 220V-240V
- IP44
Badnor Lucy baderomsspeil leveres i følgende størrelser:
Badnor Lucy (80cm) - 80x55cm
Badnor Lucy (90cm) - 90x61,5cm
Badnor Lucy (120cm) - 120x82cm
NYTT PRODUKT PÅ VEI INN!
Marikken-serien er en ny serie på vei inn til lageret vårt!
Kan evt. forhåndsbestilles, slik at vi sender av gårde med en gang partiet ankommer.
Ved bestilling av andre varer på samme ordre, tilbyr vi å sende alt som er lagervare, samt ettersende denne varen med en gang nytt parti ankommer uten ekstra kostnad.
Ta kontakt ved spørsmål!
________
Badnor Marikken er en elegant baderomsserie i lys eik med hvite spilefronter Serien kombinerer eikefarget tre med rene, hvite fronter i spilemønster. Skuffene har integrerte håndtak som følger linjene i designet, og soft-close mekanismen sørger for jevn og lydløs lukking.
Badnor Marikken servantskap leveres i mange ulike bredder - 75cm, 90cm, 120cm, 150cm og 180cm, slik at du kan tilpasse innredningen til rommets størrelse. Den åpne hyllen i serien gjør det mulig å få enda mer oppbevaringsplass, og matcher servantskapet i både materiale og uttrykk.
Denne serien er laget for deg som ønsker en lys og moderne baderomsinnredning med et ryddig formspråk. De naturlige fargene gjør Marikken til et tidløst valg som passer inn i den nordiske stilen.
Pakken består av:
Badnor Marikken 180cm servantskap i LYS EIK/HVIT SPILE, m/hvit servant
- Ramme i fargen lys eik
- Sluffefronter med matt hvit spilemønster
- Skuffeskinner med dempet lukking
- Heldekkende servant i hvit farge
- Utsparing i skuff for vannlås
- Klikkventil og servantbatteri selges separat
Størrelse:
- Bredde: 180 cm
- Dybde: 47,4 cm
- Høyde: 50 cm
(Anbefalt monteringshøyde: 83-84cm til topp servantplate)
2 stk. Badnor Lucy - et vakkert eggformet speil med stemningsfull LED-belysning som gir en herlig og innbydende følelse til baderommet.
Med ren og buet form i klassisk stil, legger det moderne speilet en touch av eleganse til baderomsinnredningen.
Speil med innebygget lys er en super løsning om man har behov for ekstra belysning på baderommet. LED-stripen ligger skjult bak kanten på speilet, og speilt kan monteres både venstrevendt og høyrevendt.
Speilet leveres også med sikkerhetsfilm som reduserer faren som splinter og skader ved å holde speilet sammen om det skulle knuses, noe som reduserer risikoen for skade.
Størrelse:
- Bredde: 120cm og 80cm
- Høyde: 82cm og 55cm
- Dybde: 3cm
- Lysfarge: 3000 Kelvin
- Montering: Kan monteres både høyrevendt og venstrevendt
- Kobberfritt speil med sikkerhetsfilm (5mm)
- 220V-240V
- IP44
Badnor Lucy baderomsspeil leveres i følgende størrelser:
Badnor Lucy (80cm) - 80x55cm
Badnor Lucy (90cm) - 90x61,5cm
Badnor Lucy (120cm) - 120x82cm
